Exklusives Traumgrundstück mit Seeblick und stehender Baugenehmigung-Wohnen!
83684 Tegernsee, Grundstück zum Kauf
Objektbeschreibung
Beschreibung
Baurecht und aktuelle Planung.
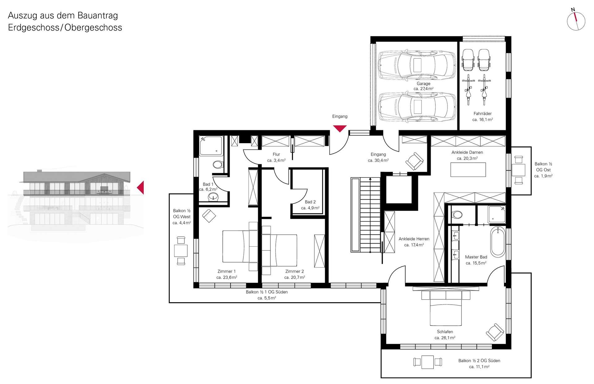
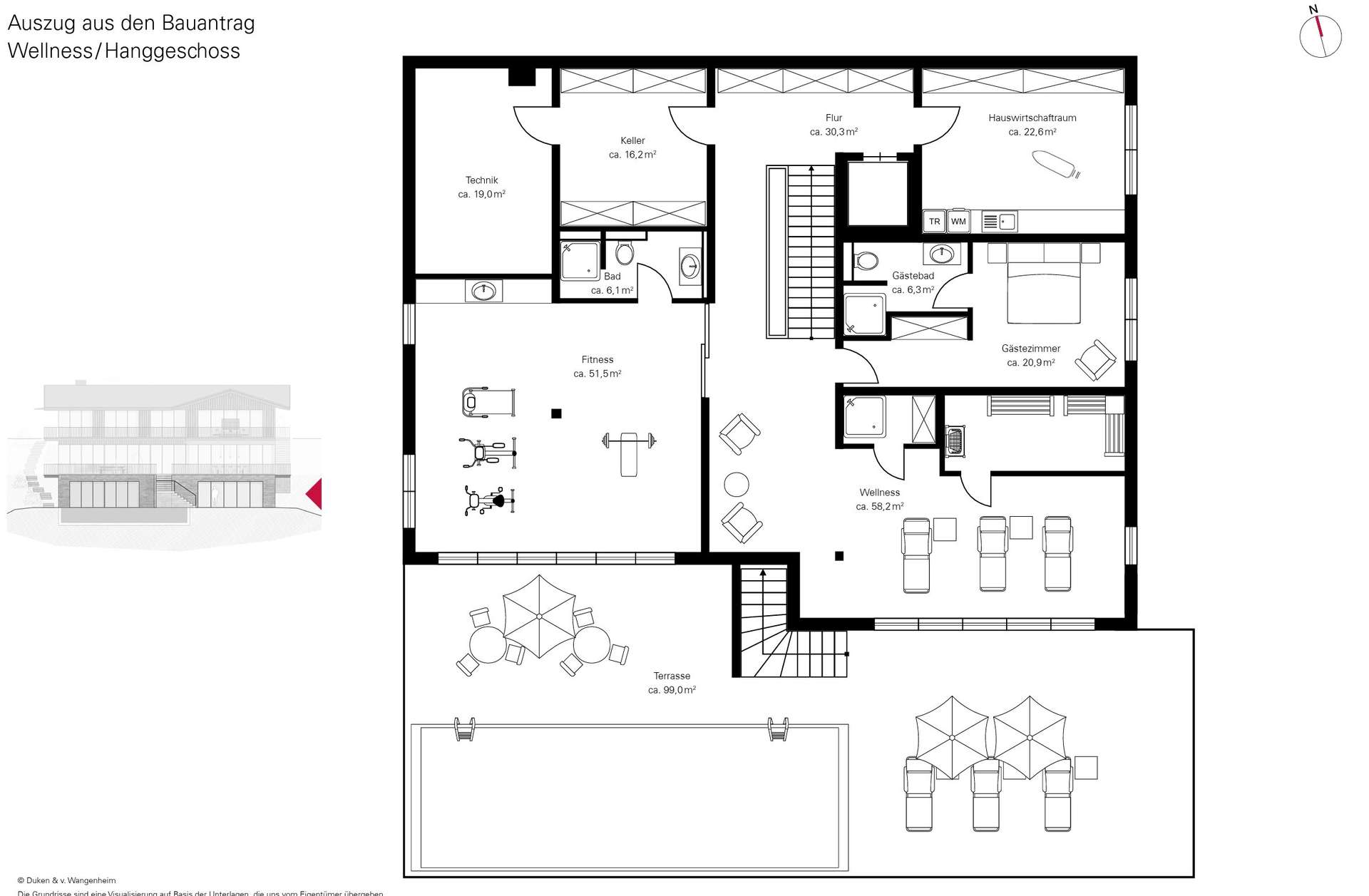
Die aktuelle Planung für ein attraktives Einfamilienhaus mit einer Gesamtfläche von ca. 840 m² und einer Wohnfläche von ca. 634 m² stammt von einem renommierten Tegernseer Architekten. Ein anspruchsvoll geplantes Anwesen mit klar gestalteter Linie bis ins Detail durchdacht. Die Architektur im modern ortstypischen Stil, behutsam in den Hang integriert und zum See und Richtung Berge orientiert. Drei Ebenen in moderner Konzeption. Bereits beim Betreten des Anwesens besticht im ca. 30 m² großen Entrée der freie Weitblick über große Fensterachsen. Hier erschließt sich das Haus über 3 Ebenen über das modern gestaltete Treppenhaus mit Lift. Die Wohnebene, in der Wohnen, Essen und Kochen auf ca. 214 m² Wohnfläche geplant wurden, ist mit einer durchgängigen Fensterfront in Richtung See und Berge orientiert. Über die gesamte Front erstrecken sich beeindruckende Terrassenflächen und einer Frei- treppe zum Terrassenplateau des Hanggeschosses mit Außenpool. Die Hanglage ermöglicht die Positionierung des Baukörpers mit attraktiven Geschossen und traumhaft ausgerichteten Blickachsen. Von jedem Geschoss faszinierende Weitblicke über den Tegernsee auf die umliegende Berglandschaft. Der private Bereich mit Master- Bedroom, Masterbad, Damen- und Herrenankleide ist im Dachgeschoss mit attraktiven Raumhöhen bis unter den Fist geplant worden. Hier befinden sich zwei weitere Schlafzimmer mit jeweils einem eigenen en suite Badezimmer. Jedes Zimmer hat Zugang zu einem schönen Balkon mit grandiosen Ausblicken. Geschickt im Umgang mit den Geländegegebenheiten erstreckt sich das Hanggeschoss mit seinem Terrassenplateau über einen eindrucksvollen Wellness- / Fitnessbereich mit Dampfbad und Sauna. Vorgelagert hierzu ist ein imposanter Pool mit 4 x 12 m Größe und einer SundeckTerrasse geplant worden. Ein höchst erholsames SPA-Feeling ist ganzjährig hier zu genießen. Ausblicke über die großen Panoramafensterflächen sowie von dem 99 m² großen Sundeck sind unverwechselbar und unwiederbringlich. Die derzeitige Planung ist jederzeit auf die persönlichen Wünsche individualisierbar und im Rahmen der örtlichen Gegebenheiten und Gesamtflächen anpassbar.
Ausstattung
Eckdaten im Überblick
- Adresse: Olaf-Bulbransonstr. 15, 83684 Tegernsee
- Grundstücksfläche: 1.502 m²
- Hanglage: leicht geneigt, Südausrichtung
- Projektierung: genehmigte Villa (Architektenplanung abgeschlossen)
- Wohnfläche: ca. 634 m²
- Nutzfläche: ca. 206 m²
- Bebauung: genehmigt, Baubeginn kurzfristig möglich
- Infrastruktur: fußläufig erreichbare Nahversorgung, gute Verkehrsanbindung
- Freizeitangebot: Wanderwege, Tegernsee, Golf, Wintersport, Gastronomie
Sonstiges
Eckdaten im Überblick
- Adresse: Olaf-Bulbransonstr. 15, 83684 Tegernsee
- Grundstücksfläche: 1.502 m²
- Hanglage: leicht geneigt, Südausrichtung
- Projektierung: genehmigte Villa (Architektenplanung abgeschlossen)
- Wohnfläche: ca. 634 m²
- Nutzfläche: ca. 206 m²
- Bebauung: genehmigt, Baubeginn kurzfristig möglich
- Infrastruktur: fußläufig erreichbare Nahversorgung, gute Verkehrsanbindung
- Freizeitangebot: Wanderwege, Tegernsee, Golf, Wintersport, Gastronomie
Objektdaten
-
Objekt-ID4360049
-
ObjekttypGrundstück
-
Adresse83684 Tegernsee
Bayern -
Grundstück ca.1.502 m²
-
Käuferprovision1,785 %
Jeweils 1,5 % des beurkundeten Kaufpreises zzgl. gesetzlicher MwSt. zahlbar vom Käufer und Verkäufer. Fälligkeit mit notarieller Beurkundung des Kaufvertrags. -
Preisauf Anfrage




















